Physical Address
304 North Cardinal St.
Dorchester Center, MA 02124
Physical Address
304 North Cardinal St.
Dorchester Center, MA 02124

Trong những năm gần đây, xu hướng xây nhà trên đất hình chữ L ngày càng phổ biến, đặc biệt ở các khu đô thị có diện tích đất hạn chế. Tuy mang lại nhiều lợi ích về công năng sử dụng và thẩm mỹ, đất hình chữ L cũng đặt ra không ít thách thức về thiết kế, phong thủy và bố trí không gian sống. Bài viết dưới đây sẽ tổng hợp trọn vẹn các vấn đề liên quan đến xây dựng nhà trên đất hình chữ L, từ kinh nghiệm thực tế, mẫu thiết kế đẹp, các giải pháp về phong thủy đến chi phí, ưu nhược điểm và những lưu ý quan trọng, giúp bạn tự tin hơn khi bắt tay vào xây dựng tổ ấm trên mảnh đất đặc biệt này.
Xây nhà trên đất hình chữ L là một giải pháp không hề hiếm thấy, đặc biệt là với những mảnh đất có hình dạng không vuông vắn, hẹp ngang. Kiến trúc này thường giúp tận dụng tối đa diện tích, nhưng đồng thời cũng mang theo nhiều khuyết điểm. Theo khoa học, việc xây dựng nhà chữ L có thể dẫn đến hiện tượng ẩm ướt do góc khuyết của mảnh đất, nơi không khí khó lưu thông và ánh sáng cũng bị hạn chế.
Từ góc độ phong thủy, thiết kế nhà chữ L thường được cho là không thuận lợi. Hình dáng của ngôi nhà giống như một con dao, trong khi phần lõm của chữ L tượng trưng cho một nguồn năng lượng bất lợi. Điều này có thể ảnh hưởng đến tài lộc và sức khỏe của gia chủ nếu không được bố trí hợp lý.
Để hóa giải những rủi ro này, các chuyên gia thường khuyên nên bố trí không gian sống sao cho hợp lý, tạo khoảng không thông thoáng và dẫn khí tốt vào trong nhà. Sử dụng tiểu cảnh hay cây cối cũng là một cách để làm mềm các góc khuyết và tạo cảm giác gần gũi hơn cho ngôi nhà.

Xây nhà trên đất hình chữ L là một thách thức thú vị nhưng cũng không kém phần khó khăn. Để hóa giải những vấn đề phong thủy mà nhà hình chữ L có thể gặp phải, việc thiết kế nội thất và ngoại thất hợp lý là rất quan trọng. Một nguyên tắc phổ biến là nếu nhà có góc khuyết, bạn có thể đặt một gương soi phẳng tại tường áp sát góc khuyết để tạo sự cân bằng cho không gian.
Phong thủy cho rằng nhà hình chữ L có thể thiếu đi sự đăng đối, và khi nhìn vào, nó giống như một “con dao” hay “lưỡi búa”. Tùy theo hướng và bố trí đất, phần “đuôi” hay phần “ngang” chữ L có thể tạo ra những không gian khác nhau, giúp khai thác diện tích hiệu quả.
Khi xây dựng, bạn nên tận dụng khoảng trống ở góc giao nhau để tạo thành sân vườn, lối đi phụ hay khu vực đỗ xe. Điều này không chỉ giúp tối ưu hóa công năng mà còn tạo ra không gian vui chơi cho trẻ em. Tuy nhiên, cần chú ý tránh chọn đất hình chữ L với góc khuyết lớn hơn 25% tổng diện tích, bởi điều đó có thể mang lại những điều không tốt về phong thủy.

Mẫu nhà hình chữ L hai tầng mái thái kết hợp sân vườn không chỉ mang lại tính thẩm mỹ cao mà còn đáp ứng nhu cầu sống tiện nghi cho gia đình. Với thiết kế thông minh, kiểu nhà này tận dụng triệt để diện tích đất, tạo không gian mở thoáng đãng và dễ chịu, phù hợp với lối sống hiện đại.
Nhà chữ L thường được phân chia thành hai khối vuông, giúp cho việc lưu thông không khí và ánh sáng tự nhiên trong nhà thuận lợi hơn. Điều này không chỉ mang đến cảm giác thoải mái mà còn giúp tiết kiệm năng lượng. Mẫu nhà mái thái với độ dốc lớn tạo điểm nhấn cho kiến trúc, cho thấy sự tinh tế và hiện đại.
Bên cạnh đó, sự phong phú trong mẫu mã từ 1 tầng đến 3 tầng khiến cho nhà chữ L trở nên phổ biến hơn, đặc biệt tại các vùng nông thôn. Chi phí xây dựng cũng rất hợp lý, chỉ từ 500 triệu trở lên, là lựa chọn tối ưu cho nhiều gia đình. Hãy khám phá thêm những thiết kế nhà đẹp này để biến ước mơ về một tổ ấm lý tưởng thành hiện thực.

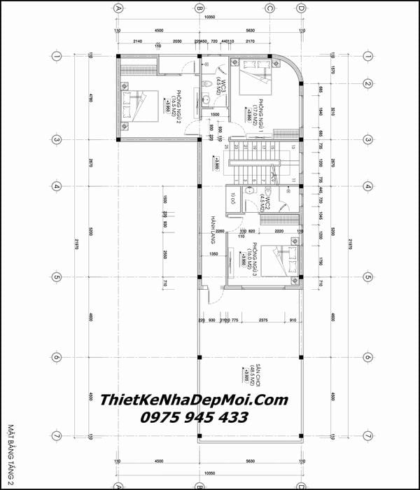
Bản vẽ thiết kế nhà trên đất hình chữ L mang đến một không gian sống đầy tiện nghi và thoải mái. Với mặt bằng mẫu nhà 2 tầng mái bằng, các phòng ngủ được bố trí đối diện sân vườn, giúp tối đa hóa ánh sáng tự nhiên, tạo cảm giác thư giãn cho các thành viên trong gia đình. Thiết kế này không chỉ đẹp mà còn khoa học, giúp phân chia không gian một cách rõ ràng, tạo sự riêng tư cho từng khu vực.
Nhà chữ L còn là lựa chọn hoàn hảo cho những khu đất nhỏ hẹp, nhờ vào hình dáng đặc trưng mà nó có thể khai thác tối đa diện tích đất sẵn có. Những mẫu nhà này đa dạng từ cấp 4 đến 3 tầng, mỗi mẫu đều mang đến vẻ đẹp hiện đại, phù hợp với phong cách sống thanh lịch của người Việt.
Hơn nữa, thiết kế nội thất cũng rất quan trọng. Việc sử dụng sofa góc chữ L trong phòng khách giúp tối ưu hóa không gian, tạo sự ấm cúng và thân thiện. Khi bạn muốn xây dựng một ngôi nhà, mẫu thiết kế nhà hình chữ L chính là sự lựa chọn đáng cân nhắc cho tương lai bạn và gia đình.

Nhà hình chữ L là một kiểu kiến trúc phổ biến, đặc biệt là với lợi thế về chiều dài, giúp việc bố trí các phòng như phòng khách, phòng ngủ, và nhà bếp trở nên hợp lý và thuận tiện hơn. Tuy nhiên, theo quan niệm phong thủy, nhà chữ L lại gặp phải một số vấn đề không tốt, đặc biệt là về mặt hình dáng. Cấu trúc này thường bị coi là có “góc khuyết”, tức là phần diện tích thiếu hụt, gây ra sự mất cân bằng trong không gian sống.
Hình dáng chữ L của ngôi nhà được ví như hình dạng của một con dao, tạo ra cảm giác sắc bén và không an toàn. Theo các chuyên gia phong thủy, lưỡi dao được xem là vị trí đại hung, có thể mang đến nhiều điều không may cho gia chủ, ảnh hưởng không chỉ đến cuộc sống hôn nhân mà còn cả sức khỏe.
Mặc dù nhà chữ L có những ưu điểm riêng, nhưng nếu không chú ý đến yếu tố phong thủy, gia chủ có thể phải đối mặt với những điều không mong muốn. Do đó, lựa chọn thiết kế và trang trí bên trong căn nhà chữ L cần được xem xét kỹ lưỡng để tạo ra một không gian hài hòa và tích cực.

Kiểu nhà hình chữ L đang trở thành xu hướng được ưa chuộng trong xây dựng hiện đại, đặc biệt là trên những lô đất có hình dạng không vuông vắn. Một trong những ưu điểm lớn nhất của nhà chữ L là khả năng tận dụng tối đa diện tích đất. Kiểu thiết kế này cho phép dễ dàng linh hoạt trong bố trí không gian, đáp ứng nhu cầu sinh hoạt của gia đình.
Nhà chữ L không chỉ dễ dàng thích nghi với nhiều dạng đất khác nhau mà còn phù hợp với các phong cách kiến trúc đa dạng. Từ hiện đại, cổ điển đến tối giản, kiểu nhà này có thể dễ dàng biến hóa cho phù hợp với sở thích của chủ nhân. Hơn nữa, nhờ có hình dạng đặc biệt, các phòng trong nhà đều thuận lợi đón ánh sáng tự nhiên, giúp tạo nên một không gian sống thoáng đãng và dễ chịu.
Một điểm nổi bật khác của nhà chữ L là khả năng tạo ra khoảng sân trong rộng rãi, từ đó tạo điều kiện cho việc bố trí sân vườn, gara hay những khoảng không gian thư giãn. Điều này có nghĩa là không chỉ có một không gian sống đầy đủ, mà còn là một nơi để các thành viên trong gia đình có thể tận hưởng những giây phút quây quần bên nhau. Kết hợp những yếu tố trên, nhà chữ L thực sự là một lựa chọn lý tưởng cho cuộc sống hiện đại.

Khi xây dựng nhà trên đất hình chữ L, có nhiều nhược điểm cần lưu ý. Đầu tiên, chiều ngang hẹp của căn nhà thường dẫn đến việc thiếu ánh sáng tự nhiên. Điều này không chỉ làm không gian bên trong trở nên ẩm thấp mà còn gây cảm giác ngột ngạt, ảnh hưởng đến sức khỏe và sinh khí của các thành viên trong gia đình.
Ngôi nhà chữ L còn có thiết kế gấp khúc, tạo nên những góc khuyết khó chịu. Những góc này khó có thể được bố trí đồ đạc hợp lý, dẫn đến việc xuất hiện “góc chết” lãng phí diện tích. Đặc biệt theo phong thủy, các góc khuyết nên được tận dụng cho không gian phụ như bếp, nhà vệ sinh mà không nên đặt phòng ngủ hay phòng khách tại đó.
Ngoài ra, nhà chữ L còn được liên tưởng như một lưỡi dao chĩa vào bên trong, tạo cảm giác chia cắt và bất an. Những yếu tố này có thể tác động tiêu cực đến tài vận và sức khỏe của gia đình nếu không được thiết kế hợp lý. Do đó, khi cân nhắc xây dựng, cần thận trọng trong việc lựa chọn phong cách và bố trí không gian sao cho hài hòa và cân bằng.

Nhà hình chữ L thường bị xem là không tốt về mặt phong thủy do thiết kế khuyết góc, gây cản trở dòng năng lượng tích cực. Để khắc phục tình trạng này, có một số giải pháp hiệu quả mà bạn có thể áp dụng. Đầu tiên, bạn nên bố trí cây cảnh quanh nhà để tăng cường sinh khí. Đặc biệt, việc trồng hoa hoặc treo tranh ảnh hình rồng tại khu vực khuyết hướng Đông Nam sẽ giúp cải thiện vượng khí.
Ngoài ra, một giải pháp đơn giản khác là sử dụng gương. Gương phản chiếu không chỉ giúp mở rộng không gian mà còn có thể “bù góc” cho những khu vực bị khuyết. Đặt chậu cây xanh hay tượng phong thủy tại những góc khuyết cũng là lựa chọn tốt, giúp tạo sự cân bằng cho ngôi nhà.
Một phương pháp được ưa chuộng nữa là thiết kế giếng trời. Việc tạo ra khoảng không mở giúp ánh sáng và không khí tự nhiên lưu thông là rất cần thiết.Cuối cùng, hãy giữ cho không gian sống luôn sạch sẽ và thông thoáng để tạo điều kiện cho năng lượng tích cực gia tăng.

Chi phí xây dựng nhà trên đất hình chữ L thường dao động từ 500 triệu đến 1,2 tỷ đồng, tùy vào diện tích và thiết kế cụ thể. Giá trung bình cho mỗi mét vuông có thể ước lượng từ 5.000.000 đến 7.000.000 đồng, do đó, việc tính chi phí một cách chi tiết là điều cần thiết.
Ví dụ, đối với những căn nhà cấp 4 có diện tích khoảng 75m2, chi phí xây dựng có thể dao động từ 611.100.000 đến 680.940.000 đồng. Tuy nhiên, giá có thể thay đổi theo từng thời điểm và khu vực. Trong trường hợp xây nhà 2 tầng hình chữ L, dự trù chi phí khoảng 600 triệu đồng cho phần thô, cộng thêm chi phí nội thất và hoàn thiện.
Ngoài ra, nhà chữ L còn có ưu điểm tiết kiệm diện tích, phù hợp cho những khu vực nông thôn hoặc ven đô đa dạng về hình dáng đất. Chính vì vậy, nếu bạn đang cân nhắc thiết kế nhà cho gia đình, việc lựa chọn mô hình này sẽ mang đến nhiều lợi ích.

Khi xây nhà trên đất hình chữ L, gia chủ cần đặc biệt lưu ý đến việc bố trí các phòng chức năng trong căn nhà. Nên tránh đặt phòng ngủ hay phòng khách tại phần khuyết của đất, vì điều này có thể ảnh hưởng xấu đến sức khỏe và hòa khí trong gia đình. Cấu trúc hình chữ L thường gặp phải vấn đề khuyết thiếu, không vuông vắn, nên việc bố trí không hợp lý sẽ dẫn đến sự mất cân bằng.
Theo phong thủy, gợi ý để hóa giải những điểm khuyết này là đặt một gương soi phẳng tại tường gần góc khuyết. Điều này không chỉ giúp mở rộng không gian mà còn cải thiện lưu thông khí trong nhà. Hơn nữa, gia chủ cũng cần cẩn thận với những phòng nằm ở vị trí “lưỡi dao” — những khu vực nhô ra hoặc lõm sâu có thể tạo cảm giác không thoải mái và căng thẳng.
Với những ưu điểm như tiết kiệm diện tích, nhà chữ L đang ngày càng phổ biến. Tuy nhiên, điều quan trọng là gia chủ phải đánh giá kỹ lưỡng các yếu tố về phong thủy và kiến trúc để tối ưu hóa không gian sống và cải thiện chất lượng cuộc sống của cả gia đình.

Kết thúc, việc xây nhà trên đất hình chữ L không chỉ mang đến một không gian sống độc đáo mà còn thể hiện khả năng sáng tạo trong thiết kế kiến trúc. Với sự phối hợp hài hòa giữa công năng và thẩm mỹ, loại hình nhà này có thể tận dụng tối đa diện tích đất, cung cấp không gian mở thoáng đãng và đa dạng cho các hoạt động gia đình. Đồng thời, việc lựa chọn và bố trí nội thất hợp lý sẽ gia tăng tính tiện nghi và phong cách cho ngôi nhà. Vì vậy, xây dựng một ngôi nhà hình chữ L là lựa chọn thông minh cho những ai mong muốn tạo dựng tổ ấm cá tính và ấm cúng.