Physical Address
304 North Cardinal St.
Dorchester Center, MA 02124
Physical Address
304 North Cardinal St.
Dorchester Center, MA 02124

Trong quá trình phát triển đô thị và quản lý đất đai tại Việt Nam, quy hoạch là một yếu tố vô cùng quan trọng, giúp xây dựng bộ mặt đô thị hiện đại, đồng bộ và bền vững. Trong số các loại quy hoạch, quy hoạch 1/5000 được nhắc đến thường xuyên với vai trò định hướng phát triển tổng thể cho một khu vực rộng lớn. Tuy nhiên, không phải ai cũng hiểu rõ về quy hoạch 1/5000 là gì, mục đích thực hiện, đối tượng áp dụng cũng như các bước lập quy hoạch và ý nghĩa thực tiễn của loại quy hoạch này. Bài viết sau sẽ giúp bạn tìm hiểu chi tiết về quy hoạch 1/5000 cùng những thông tin liên quan thiết thực nhất.
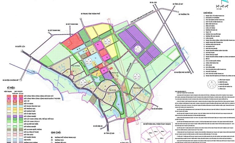
Quy hoạch 1/5000, hay còn gọi là quy hoạch chung, là một dạng bản đồ địa chính được vẽ theo tỷ lệ 1/5000. Điều này có nghĩa là 1 cm trên bản đồ tương ứng với 5000 cm ngoài thực tế. Quy hoạch này đóng vai trò rất quan trọng trong việc xác định hướng phát triển đô thị và sử dụng đất cho các khu vực lớn.
Một trong những nhiệm vụ chính của quy hoạch 1/5000 là xác định các khu vực chức năng, từ đó giúp các nhà đầu tư có cái nhìn tổng thể về cơ sở hạ tầng và giao thông. Bản đồ này giúp họ xác định các mốc phát triển, hỗ trợ việc nghiên cứu và khai thác đô thị một cách hiệu quả nhất.
Ngoài ra, quy hoạch 1/5000 còn hướng dẫn các quyết định đầu tư và phát triển trong tương lai. Tính tổng thể và quy mô lớn của nó giúp đảm bảo sự phát triển bền vững của khu vực, giảm thiểu những rủi ro và nâng cao chất lượng cuộc sống cho người dân. Это важно учитывать для достижения гармоничного развития городской среды.

Quy hoạch 1/5000 là một công cụ quan trọng giúp xác định mục tiêu và hướng phát triển của các dự án bất động sản. Thông qua bản đồ này, các chủ đầu tư có thể hình dung rõ ràng về không gian phát triển, từ đó đưa ra những quyết định chiến lược cho dự án.
Mục đích chính của quy hoạch 1/5000 là định hướng phát triển không gian đô thị trong dài hạn, đồng thời xác định rõ ràng các khu vực chức năng, giao thông và hạ tầng cần thiết. Thực tế, bản đồ quy hoạch này không chỉ giúp xác định địa giới mà còn là cơ sở cho việc đưa ra các quyết định quan trọng như phê duyệt dự án.
Một điểm đáng chú ý là quy hoạch 1/5000 còn hỗ trợ cho các nhà đầu tư trong việc kêu gọi vốn, giải phóng mặt bằng và chuẩn bị cho việc xây dựng. Nó như một bản đồ dẫn đường, giúp các bên liên quan nắm bắt và thực hiện đúng hướng phát triển của đô thị. Chính vì vậy, quy hoạch 1/5000 trở thành một yêu cầu thiết yếu trong quá trình phát triển đô thị bền vững.

Quy hoạch 1/5000 là một phần quan trọng trong việc quản lý phát triển đô thị, đặc biệt là trong việc xác định rõ ràng các khu vực nội thành và ngoại thành. Bản đồ quy hoạch này không chỉ là những hình ảnh minh họa cho đất đai hay đường sá, mà còn là một tập hợp các yếu tố kỹ thuật và pháp lý cần thiết để định hướng phát triển.
Đối tượng áp dụng của quy hoạch 1/5000 thường liên quan đến các khu vực đông dân cư, với quy mô dân số từ 4.000 người trở lên và mật độ dân số đạt từ 1.000 người/km². Điều này cho thấy quy hoạch này chủ yếu tập trung vào những thành phố hay khu dân cư có tính tập trung cao.
Đặc biệt, những nhà bị dính quy hoạch 1/5000 thường gặp trong lĩnh vực bất động sản thổ cư. Những nhà đầu tư dày dạn kinh nghiệm sẽ nhận thấy đây là cơ hội lớn để sinh lời, nhất là khi họ am hiểu về quy định và các chỉ tiêu quy hoạch. Việc nắm rõ các yếu tố trong quy hoạch này sẽ giúp tối ưu hóa quyết định đầu tư và đảm bảo lợi ích lâu dài.

Quy trình lập quy hoạch 1/5000 được thực hiện theo 5 bước chính và được quy định trong Nghị định 44/2021/NĐ-CP, cùng với các thông tư hướng dẫn từ Bộ Xây dựng. Bước đầu tiên là lập và phê duyệt nhiệm vụ quy hoạch xây dựng. Đây là nền tảng quan trọng, xác định các mục tiêu và nội dung quy hoạch.
Tiếp theo, quá trình điều tra, khảo sát địa hình sẽ diễn ra, nhằm thu thập thông tin cần thiết về hiện trạng khu vực quy hoạch. Sau đó, các nhà quy hoạch sẽ thiết lập phương án quy hoạch, đảm bảo rằng nó đáp ứng yêu cầu phát triển bền vững và hài hòa với môi trường xung quanh.
Bước tiếp theo là tổ chức thẩm định, trong đó các chuyên gia sẽ đánh giá tính khả thi và tính hợp pháp của phương án quy hoạch. Cuối cùng, quy hoạch sẽ được phê duyệt bởi cơ quan có thẩm quyền. Quy hoạch 1/5000 không chỉ là những bản đồ địa chính, mà còn là cơ sở quan trọng để quản lý đô thị và thực hiện các dự án đầu tư xây dựng trong tương lai.

Hồ sơ quy hoạch 1/5000 là tài liệu quan trọng giúp xác định ranh giới, tính chất và diện tích khu vực quy hoạch. Bản đồ quy hoạch này không chỉ thông tin về các chỉ tiêu dự kiến về hạ tầng kỹ thuật mà còn phản ánh định hướng phát triển đô thị trong tương lai.
Trong hồ sơ, bạn sẽ thấy sơ đồ vị trí và giới hạn khu đất theo tỷ lệ 1/2000 hoặc 1/5000. Điều này giúp các nhà đầu tư hình dung rõ hơn về phạm vi quy hoạch đã được phê duyệt. Đặc biệt, việc bố trí hạ tầng kỹ thuật, hệ thống giao thông, cấp thoát nước, và cấp điện cũng được thể hiện chi tiết, tạo cơ sở cho các dự án xây dựng.
Quy hoạch chung 1/5000 còn giúp phân định khu vực nội thành và ngoại thành, giúp các chủ đầu tư có quyết định hợp lý trong phát triển dự án. Bằng cách hiểu rõ những nội dung này, các nhà đầu tư sẽ dễ dàng nghiên cứu, phát triển và khai thác không gian đô thị một cách hiệu quả nhất.

Quy hoạch 1/5000, thường được gọi là quy hoạch chung, đóng vai trò quan trọng trong việc phát triển đô thị. Với thời hạn có thể từ 20 đến 25 năm, quy hoạch này có hiệu lực đến khi có sự điều chỉnh hoặc thay thế. Tuy nhiên, không có khung thời gian cố định cho dự án quy hoạch 1/5000; thời gian thực hiện tùy thuộc vào sự phát triển thực tế của khu vực.
Đối với các thành phố trực thuộc Trung ương, quy trình lập nhiệm vụ quy hoạch chung nhanh chóng, chỉ mất khoảng 3 tháng. Sau đó, thời gian để lập đồ án không vượt quá 15 tháng. Các bước phê duyệt cũng được quy định khá rõ ràng, từ phê duyệt nhiệm vụ trong 15 ngày đến thẩm định đồ án trong 25 ngày.
Một điểm cần lưu ý là quy hoạch 1/5000 không chỉ hướng đến việc bố trí cơ sở hạ tầng mà còn giúp chủ đầu tư có cái nhìn tổng quát để phát triển và khai thác tiềm năng của khu vực. Nhờ đó, quy hoạch này trở thành yêu cầu cơ bản cho mọi dự án xây dựng trong đô thị.

Quy hoạch 1/5000 và 1/2000 đều có vai trò quan trọng trong quản lý đô thị, nhưng chúng phục vụ những mục đích khác nhau. Quy hoạch 1/5000 thường mang tính tổng thể, giúp xác định các khu vực chức năng, định hướng giao thông và ranh giới phát triển hạ tầng trên một quy mô lớn. Nó cung cấp cái nhìn tổng quát cho những nhà đầu tư, giúp họ nghiên cứu và phát triển đô thị.
Ngược lại, quy hoạch 1/2000 lại có tính cụ thể hơn, tập trung vào việc lập các bản đồ không gian, kiến trúc và cảnh quan. Nó hướng dẫn cách bố trí của cơ sở hạ tầng trong các khu vực đã được quy hoạch, bảo đảm rằng các công trình sẽ được xây dựng phù hợp và đồng bộ, tạo ra một không gian đô thị hài hòa.
Sự khác biệt này giúp đô thị phát triển bền vững, khi mà quy hoạch tổng thể 1/5000 đảm bảo sự phát triển trên một tầm nhìn lớn, còn quy hoạch chi tiết 1/2000 lại cụ thể hóa các chỉ tiêu, tiêu chí để hiện thực hóa những dự án trong thực tế.

Quy hoạch 1/5000, hay còn gọi là quy hoạch chung, đóng vai trò vô cùng quan trọng trong việc phát triển đô thị. Đây là loại bản đồ địa chính với tỷ lệ 1/5000, thể hiện một cách tổng quát về định hướng phát triển và kế hoạch sử dụng đất của một khu vực lớn. Qua bản đồ này, các nhà đầu tư và chủ dự án có thể nắm bắt được cách bố trí các khu chức năng, từ đó dễ dàng triển khai kế hoạch đầu tư.
Hơn nữa, quy hoạch 1/5000 cũng giúp các cơ quan quản lý nhà nước đưa ra quyết định phê duyệt dự án, điều phối giao thông, và kiểm soát sự phát triển đô thị. Nó cung cấp cơ sở để kêu gọi đầu tư, giải phóng mặt bằng và thực hiện các chính sách hỗ trợ di dân. Đặc biệt, quy hoạch này còn đóng vai trò như một “bức tranh” tổng thể cho thấy tiềm năng phát triển dài hạn của khu vực, giúp hạn chế rủi ro cho các nhà đầu tư.
Tóm lại, quy hoạch 1/5000 không chỉ là tài liệu tham khảo mà còn là nền tảng cho mọi hoạt động phát triển đô thị trong tương lai. Việc hiểu rõ bản đồ này là điều cần thiết để các bên liên quan có thể phối hợp nhịp nhàng, đảm bảo sự phát triển bền vững cho khu vực.

Khi xem quy hoạch 1/5000, cần lưu ý nhiều yếu tố quan trọng để đảm bảo bạn hiểu rõ về khu vực mình quan tâm. Quy hoạch 1/5000 giúp xác định các khu chức năng như khu dân cư, khu công nghiệp, và hạ tầng giao thông. Điều này cực kỳ hữu ích cho các nhà đầu tư, giúp họ đưa ra các quyết định đúng đắn.
Để nắm bắt thông tin cụ thể, bạn có thể bắt đầu bằng cách kiểm tra thông tin quy hoạch đất trong sổ đỏ. Nếu cần thêm thông tin, hãy đến cơ quan chức năng có thẩm quyền để tra cứu. Đôi khi, việc nộp phiếu yêu cầu cũng là cách giúp bạn có được những dữ liệu cần thiết.
Một điều cần chú ý là bản đồ quy hoạch 1/5000 còn giúp xác định mốc giới, ranh giới các phần đất. Điều này rất quan trọng trong việc đảm bảo tính hợp pháp khi thực hiện các giao dịch bất động sản. Nhìn chung, việc hiểu rõ quy hoạch không chỉ giúp bạn định hình được tiềm năng phát triển mà còn mang lại sự an tâm khi đầu tư.

Trên đây là những thông tin cơ bản về quy hoạch 1/5000, một công cụ quan trọng trong việc quản lý và phát triển đô thị. Quy hoạch này không chỉ giúp xác định định hướng sử dụng đất, mà còn đảm bảo tính bền vững cho môi trường và cộng đồng. Việc áp dụng quy hoạch 1/5000 sẽ tạo điều kiện thuận lợi cho việc thu hút đầu tư, phát triển hạ tầng và nâng cao chất lượng đời sống của người dân. Chính vì vậy, việc hiểu rõ và thực hiện đúng quy hoạch này là trách nhiệm của cả chính quyền lẫn cộng đồng, nhằm xây dựng một đô thị văn minh, hiện đại.