Physical Address
304 North Cardinal St.
Dorchester Center, MA 02124
Physical Address
304 North Cardinal St.
Dorchester Center, MA 02124

Khu đô thị Văn Khê Hà Đông là một trong những khu đô thị hiện đại và phát triển bậc nhất khu vực phía Tây Hà Nội. Sở hữu vị trí chiến lược, hạ tầng đồng bộ cùng hệ thống tiện ích đa dạng, Văn Khê đã và đang trở thành điểm đến lý tưởng cho nhiều gia đình, chuyên gia, cũng như các nhà đầu tư bất động sản. Bài viết sau đây sẽ cung cấp những thông tin tổng quan về khu đô thị Văn Khê Hà Đông, từ vị trí, mặt bằng, tiện ích, giá bán đến các sản phẩm chung cư và cách liên hệ để được tư vấn chi tiết nhất.
Khu đô thị Văn Khê là một trong những dự án nổi bật tại quận Hà Đông, Hà Nội, tọa lạc trên mặt đường Lê Văn Lương kéo dài. Không chỉ cách trung tâm quận Hà Đông khoảng 1km, vị trí đắc địa này còn tạo điều kiện thuận lợi cho việc di chuyển đến các khu vực lân cận.
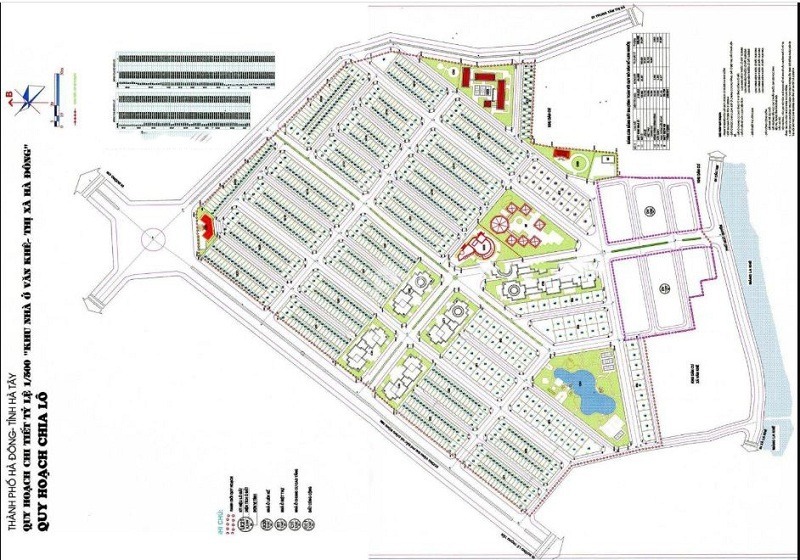
Diện tích của khu đô thị lên tới 239.051m2, với tổng vốn đầu tư hơn 50 triệu USD. Khu vực này được quy hoạch đồng bộ, hiện đại với nhiều loại hình nhà ở đa dạng, như chung cư cao tầng, biệt thự và nhà liền kề. Nội thất của các căn nhà được thiết kế theo phong cách kiến trúc Châu Âu, tạo nên không gian sống tiện nghi và sang trọng.
Ngoài ra, khu đô thị còn được trang bị đầy đủ các tiện ích như trường mầm non, trường tiểu học, và hội trường cho cư dân. Đây sẽ là một lựa chọn lý tưởng cho những ai đang tìm kiếm một không gian sống yên bình, gần gũi với thiên nhiên nhưng vẫn đầy đủ tiện nghi.

Khu đô thị Văn Khê tọa lạc tại một vị trí đắc địa trên mặt đường Lê Văn Lương, chỉ cách quận Hà Đông khoảng 1 km. Với lợi thế này, khu đô thị trở thành một trong những nơi lý tưởng cho những ai muốn tìm kiếm không gian sống tiện nghi và hiện đại tại Hà Nội.
Văn Khê được bao bọc bởi nhiều tuyến đường lớn, tạo điều kiện thuận lợi cho việc di chuyển. Phía Đông giáp đường 24m, trong khi phía Tây tiếp giáp với đường vành đai TP. Hà Đông rộng 36m. Điều này không chỉ giúp kết nối nhanh chóng đến trung tâm quận mà còn hướng ra các tỉnh lân cận.
Ngoài ra, khu đô thị còn nằm gần các tiện ích như trường học, bệnh viện và trung tâm thương mại, đáp ứng đầy đủ nhu cầu sống hàng ngày của cư dân. Với hạ tầng giao thông hoàn thiện, Văn Khê không chỉ là nơi an cư lý tưởng mà còn là lựa chọn đầu tư thông minh cho những ai muốn hướng tới tương lai bền vững.

Khu đô thị Văn Khê tọa lạc trên mặt đường Lê Văn Lương mở rộng, cách trung tâm quận Hà Đông khoảng 1km và Trung tâm Hội nghị Quốc gia chỉ 3km. Vị trí này thật sự đắc địa, thuận lợi cho việc di chuyển và kết nối với các khu vực lân cận. Khu đô thị còn gần gũi với nhiều dự án lớn như Geleximco Lê Trọng Tấn, tạo điều kiện thuận lợi cho sự phát triển kinh doanh và sinh sống.
Văn Khê có tổng quy mô lên đến 24 ha, bao gồm 133 căn biệt thự, 760 căn nhà liền kề cùng 6 tòa chung cư cao tầng. Khu vực này còn được trang bị đầy đủ các tiện ích như trường mầm non, trường tiểu học, đáp ứng nhu cầu học tập và sinh hoạt cho cư dân.
Đặc biệt, khu đô thị còn sở hữu những cư dân đông đúc và sầm uất, nơi đây lý tưởng để kinh doanh với mặt bằng rộng rãi, thu hút nhiều khách hàng. Với mức giá thuê hợp lý, Văn Khê thực sự là lựa chọn lý tưởng cho cả việc ở và đầu tư.

Khu đô thị Văn Khê Hà Đông đang trở thành một điểm đến hấp dẫn cho cư dân tìm kiếm không gian sống lý tưởng. Với quy mô 23.9ha và mức đầu tư lên tới 1000 tỷ đồng, dự án mang đến môi trường sống xanh, hiện đại và đầy đủ các tiện ích cần thiết.
Hệ thống tiện ích tại Văn Khê được thiết kế đa dạng, đáp ứng mọi nhu cầu của cư dân. Từ hồ bơi thư giãn, phòng gym hiện đại cho đến các khu vui chơi trẻ em hay trung tâm thương mại tiện lợi, tất cả đều đảm bảo mang lại trải nghiệm sống thoải mái và thuận tiện.
Ngoài ra, khu đô thị còn có khu sinh hoạt cộng đồng và dịch vụ chăm sóc sức khỏe, giúp cư dân có những giây phút thư giãn và chăm sóc bản thân tốt hơn. Vị trí nằm trên mặt đường Lê Văn Lương mở rộng gần 1km là một điểm cộng lớn, tạo điều kiện thuận lợi cho việc di chuyển và kết nối với các khu vực lân cận.
Tóm lại, Văn Khê không chỉ là nơi dừng chân lý tưởng mà còn là tổ ấm đầy đủ tiện nghi cho mọi gia đình.

Khu đô thị Văn Khê, Hà Đông hiện đang là điểm đến hấp dẫn cho những ai đang tìm kiếm một không gian sống lý tưởng. Nơi đây nổi bật với những căn biệt thự sang trọng, như biệt thự 4 phòng ngủ, 4 nhà vệ sinh, rộng 50m² với mức giá khoảng 17 tỷ đồng, hoặc biệt thự 185m² với 5 phòng ngủ, 4 nhà vệ sinh đang được bán gấp với mức giá thỏa thuận.
Người dân có thể dễ dàng tìm thấy nhiều lựa chọn từ nhà liền kề đến biệt thự với không gian rộng rãi, vị trí đẹp. Chẳng hạn, một căn nhà liền kề 83m², 5 tầng, mặt tiền 5m với mức giá 21,5 tỷ đồng đang thu hút sự quan tâm của nhiều người. Đặc biệt, khu vực này sở hữu mặt tiền lớn, rất thuận tiện cho việc kinh doanh.
Không chỉ vậy, KĐT Văn Khê còn có những căn hộ chung cư với giá cả phải chăng, phù hợp với nhu cầu của nhiều gia đình. Nơi đây gần trường học, siêu thị và nhiều tiện ích khác, đảm bảo cuộc sống đầy đủ và tiện nghi cho cư dân.

Chung cư Khu đô thị Văn Khê, Hà Đông là một trong những lựa chọn hàng đầu cho những ai đang tìm kiếm không gian sống lý tưởng và hiện đại. Với giá bán căn hộ dao động từ 51,6 đến 70,5 triệu/m², khu vực này cung cấp đa dạng các diện tích căn hộ từ 45 đến 145 m², đáp ứng nhu cầu của nhiều khách hàng.
Tại đây, bạn có thể tìm thấy nhiều loại hình căn hộ khác nhau. Ví dụ, căn hộ VIP1 tại Tòa CT1 cực rộng với diện tích 150m², 3 phòng ngủ và 2WC, mang lại không gian sống thoải mái cho các gia đình. Ngoài ra, căn hộ CT3 với 76m², thiết kế 2 phòng ngủ cũng rất được ưa chuộng, với giá chỉ 4,95 tỷ đã bao gồm nội thất đầy đủ.
Khu đô thị Văn Khê có tổng quy mô lên tới 24 ha, bao gồm 6 tòa nhà cao tầng và nhiều tiện ích như trường mầm non, tiểu học, hội trường, tạo nên một môi trường sống lý tưởng cho cư dân. Các tòa nhà được thiết kế hiện đại, trang nhã, hứa hẹn sẽ mang đến không gian sống thoải mái cho những ai chọn nơi đây làm tổ ấm.

Khu đô thị Văn Khê, nằm trên tuyến đường Lê Văn Lương kéo dài tại phường La Khê, quận Hà Đông, đang thu hút sự quan tâm lớn từ các nhà đầu tư và người dân. Với quy mô 24 ha, dự án này gồm 133 biệt thự và 760 nhà liền kề, tạo nên một không gian sống hiện đại và tiện nghi. Không chỉ đẹp về thiết kế, các căn hộ tại đây còn mang lại tiềm năng sinh lời cao, cam kết chính chủ cho những ai đang muốn sở hữu.
Mới đây, có thông tin bán nhà liền kề Văn Khê với diện tích 83m², 5 tầng, mặt tiền 5m, giá chỉ khoảng 21.5 tỷ. Các căn nhà này đã hoàn thiện nội thất cao cấp, rất phù hợp cho việc ở hoặc làm văn phòng. Khu đô thị Văn Khê không chỉ có không gian sống lý tưởng mà còn được bao quanh bởi các tiện ích như trường học, chung cư và khu thương mại.
Với vị trí đắc địa, khu đô thị còn dễ dàng kết nối đến các khu vực khác của Hà Nội, mang lại sự thuận lợi cho cư dân. Không thể bỏ qua, nếu bạn đang tìm kiếm một nơi an cư lạc nghiệp vừa đẹp, vừa tiềm năng đầu tư.

Khu đô thị Văn Khê Hà Đông không chỉ là một điểm đến lý tưởng cho cư dân mà còn là biểu tượng cho sự phát triển của đô thị hiện đại tại Việt Nam. Với hệ thống hạ tầng đồng bộ, tiện ích đa dạng và không gian sống xanh, khu đô thị này mang đến cho người dân một cuộc sống tiện nghi, an lành. Sự tập trung đầu tư vào cơ sở hạ tầng và chất lượng dịch vụ đã tạo ra một môi trường sống lý tưởng, thu hút ngày càng nhiều cư dân về sinh sống. Tương lai, Văn Khê sẽ tiếp tục phát triển và khẳng định vị thế của mình trong lòng người dân Hà Nội.