Physical Address
304 North Cardinal St.
Dorchester Center, MA 02124
Physical Address
304 North Cardinal St.
Dorchester Center, MA 02124

Việc xây dựng nhà trọ đang ngày càng phổ biến nhằm đáp ứng nhu cầu lưu trú ngày một tăng tại các đô thị lớn. Tuy nhiên, để quá trình xây dựng diễn ra thuận lợi và đúng pháp luật, chủ đầu tư cần chuẩn bị đầy đủ hồ sơ, bản vẽ xin phép xây dựng nhà trọ theo đúng quy định của nhà nước. Bài viết sau sẽ cung cấp cho bạn cái nhìn tổng quan về các thủ tục, quy trình, hồ sơ, mẫu bản vẽ cũng như những lưu ý quan trọng khi xin phép xây dựng nhà trọ. Ngoài ra, bạn sẽ được tham khảo về chi phí, tiêu chuẩn và các đơn vị thiết kế bản vẽ uy tín hiện nay.
Bản vẽ xin phép xây dựng nhà trọ là một bước quan trọng trong quá trình thực hiện dự án cho thuê phòng trọ. Hiện tại, hồ sơ thường xin phép theo dạng nhà ở, và thời gian chuẩn bị hồ sơ chỉ mất từ 3 đến 5 ngày. Để được phê duyệt, bản vẽ cần tuân thủ các tiêu chuẩn về kiến trúc, kết cấu, hệ thống cấp thoát nước, điện, phòng cháy chữa cháy, và quy hoạch khu vực.
Quy trình xin phép xây dựng bao gồm hai bước chính. Đầu tiên, bạn cần chuẩn bị một bộ hồ sơ đầy đủ, đảm bảo có giấy chứng nhận quyền sử dụng đất, đơn đề nghị cấp giấy phép xây dựng, và bản vẽ thiết kế nhà trọ có xác nhận của đơn vị thiết kế đủ điều kiện. Sau khi hoàn thiện, hồ sơ sẽ được nộp tại cơ quan có thẩm quyền, thường là UBND cấp huyện hoặc Sở Xây dựng.
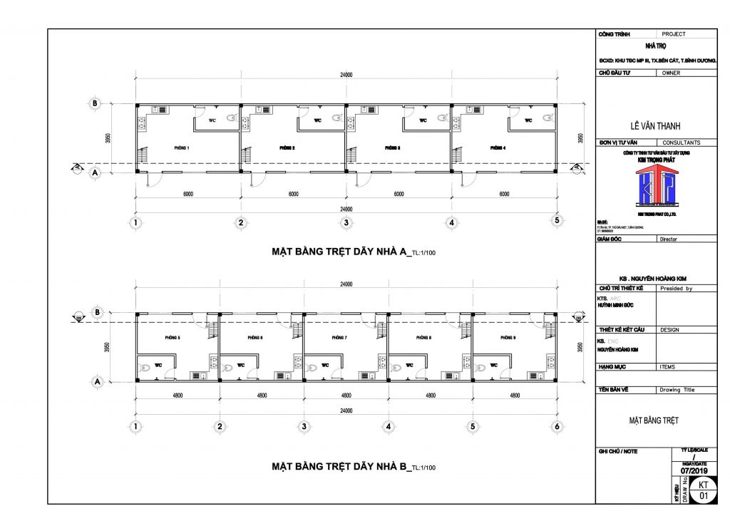
Một bản vẽ chất lượng không chỉ giúp thể hiện mật độ xây dựng mà còn tối ưu hóa diện tích vừa đảm bảo công năng sử dụng. Với những thiết kế hợp lý, nhà trọ có thể được xây dựng trên quỹ đất có diện tích nhỏ mà vẫn mang lại giá trị sử dụng cao. Chẳng hạn như mẫu phòng trọ cấp 4 có gác lửng, rất phù hợp cho những khu đất hạn chế về mặt diện tích.

Thủ tục xin phép xây dựng nhà trọ là một phần quan trọng trong việc đầu tư vào bất động sản. Để bắt đầu, bạn cần chuẩn bị hồ sơ xin cấp giấy phép xây dựng, bao gồm đơn đề nghị cấp phép và bản sao giấy tờ chứng minh quyền sử dụng đất, như sổ đỏ.
Hồ sơ cần nộp tại UBND cấp huyện hoặc quận nơi dự kiến xây dựng. Sau khi nộp hồ sơ, cơ quan có thẩm quyền sẽ xem xét và xử lý trong thời gian quy định. Bạn còn cần lưu ý đến việc đăng ký kinh doanh nhà trọ, cam kết thực hiện các thủ tục về phòng cháy chữa cháy và khai báo tạm trú cho người thuê.
Chi tiết hơn, trong hồ sơ còn cần có bản vẽ thiết kế nhà trọ, nhằm đảm bảo công trình đáp ứng các tiêu chí xây dựng. Quy định về giấy phép xây dựng có thời hạn cũng rất cần thiết để bạn có thể quản lý và duy trì hoạt động kinh doanh một cách hiệu quả. Chúc bạn thành công trong việc xây dựng nhà trọ!

Khi có kế hoạch xây dựng nhà trọ, bước đầu tiên mà bạn cần thực hiện là chuẩn bị đầy đủ hồ sơ xin cấp phép xây dựng. Hồ sơ này rất quan trọng và bao gồm nhiều tài liệu cần thiết. Trong đó, không thể thiếu đơn đề nghị cấp giấy phép xây dựng theo mẫu quy định của Sở Xây dựng.
Thêm vào đó, bạn cũng cần cung cấp bản sao giấy tờ chứng minh quyền sử dụng đất, có thể là Sổ đỏ hoặc Sổ hồng, để chứng minh rằng bạn có quyền xây dựng trên mảnh đất đó. Điều này giúp đảm bảo rằng dự án của bạn phù hợp với quy định của pháp luật về đất đai.
Sau khi hoàn thành hồ sơ, bạn hãy mang theo CCCD và đến nộp tại UBND quận hoặc huyện nơi có đất. Thời gian xét duyệt sẽ phụ thuộc vào quy trình mà cơ quan chức năng thực hiện. Việc này giúp bạn yên tâm hơn về mặt pháp lý trước khi bắt tay vào xây dựng nhà trọ cho thuê, một mô hình được nhiều người ưa chuộng hiện nay.

Khi bạn có ý định xây dựng nhà trọ để cho thuê, việc xin giấy phép xây dựng là điều cần thiết. Bản vẽ xin phép xây dựng nhà trọ chủ yếu được thực hiện dưới dạng nhà ở. Thời gian chuẩn bị hồ sơ khá nhanh chóng, chỉ khoảng 3-5 ngày. Nội dung của bản vẽ này sẽ bao gồm nhiều phần quan trọng như ý tưởng thiết kế ban đầu, mặt cắt công trình và phần móng, cũng như mặt đứng của công trình.
Một điều không thể thiếu trong bản vẽ là mật độ xây dựng, thể hiện rõ diện tích của miếng đất và diện tích phần bạn dự định xây dựng. Quy mô xây dựng cũng cần được nêu rõ để đảm bảo tuân thủ các quy định của địa phương. Nếu bạn tự chuẩn bị hồ sơ để xin giấy phép, hãy chắc chắn rằng bạn có đầy đủ các giấy tờ chứng minh quyền sử dụng đất.
Đơn đề nghị cấp giấy phép xây dựng cũng cần được điền theo mẫu quy định. Bạn có thể tải mẫu này từ trang web của UBND địa phương hoặc nộp trực tiếp. Tóm lại, việc chuẩn bị chu đáo hồ sơ và bản vẽ sẽ giúp việc xin giấy phép của bạn thuận lợi hơn.

Quy trình xin phép xây dựng nhà trọ không hề đơn giản, nhưng nếu bạn nắm vững các bước cần thiết, mọi việc sẽ trở nên thuận lợi hơn. Đầu tiên, chủ đầu tư cần chuẩn bị một bộ hồ sơ đầy đủ trước khi nộp đơn. Hồ sơ bao gồm đơn đề nghị cấp giấy phép xây dựng theo mẫu quy định, bản sao giấy tờ chứng minh quyền sử dụng đất và bản vẽ thiết kế.
Sau khi đã có đủ giấy tờ, bước tiếp theo là nộp hồ sơ tại UBND cấp huyện hoặc quận nơi có đất. Tại đây, bạn sẽ được tiếp nhận hồ sơ và nhận thông tin về thời gian xử lý. Cơ quan chức năng sẽ xem xét hồ sơ của bạn để đảm bảo mọi thứ đều hợp lệ và đúng quy định.
Nếu hồ sơ của bạn được chấp thuận, bạn sẽ nhận được giấy phép xây dựng. Tuy nhiên, đừng quên theo dõi tiến độ xử lý và kịp thời bổ sung nếu có yêu cầu thêm từ phía cơ quan quản lý. Hy vọng với những bước này, bạn sẽ nhanh chóng thực hiện được dự án xây dựng nhà trọ của mình.

Giá bản vẽ xin phép xây dựng nhà trọ là một yếu tố quan trọng mà chủ đầu tư cần lưu ý. Hiện nay, việc lập bản vẽ xin phép xây dựng thường có mức giá khoảng 20.000 VNĐ/m². Tùy thuộc vào tổng diện tích sàn xây dựng, chi phí này có thể dao động từ 3.000.000 VNĐ cho diện tích dưới 100 m², lên đến 9.000.000 VNĐ cho diện tích từ 200 m² đến 400 m².
Ngoài ra, dịch vụ xin phép xây dựng nhà ở cho thuê phòng trọ thường đòi hỏi một hồ sơ đầy đủ với các bản vẽ chi tiết. Thời gian chuẩn bị hồ sơ thường mất từ 3-5 ngày, và cần đảm bảo tuân thủ các tiêu chuẩn về kiến trúc, kết cấu, cấp thoát nước, điện, phòng cháy chữa cháy và quy hoạch khu vực.
Chúng ta cũng cần lưu ý rằng chi phí thiết kế bản vẽ có thể dao động từ 100.000 VNĐ đến 300.000 VNĐ/m², tùy thuộc vào mức độ chi tiết mà mình mong muốn. Do đó, việc tìm hiểu kỹ lưỡng hạng mục này sẽ giúp bạn tiết kiệm được chi phí và thời gian trong quá trình xây dựng nhà trọ.

Khi quyết định xây dựng nhà trọ, việc xin phép xây dựng là một bước quan trọng không thể bỏ qua. 618 Architects là một trong những đơn vị thiết kế bản vẽ xin phép xây dựng nhà trọ nổi bật tại Đà Nẵng. Được biết đến với dịch vụ trọn gói từ A-Z, họ không chỉ cung cấp khảo sát hiện trạng mà còn tư vấn các giải pháp mặt bằng hiệu quả.
Nếu bạn tự tin muốn làm hồ sơ xin phép, hãy nhớ chuẩn bị một bộ hồ sơ hoàn chỉnh và nộp trực tiếp lên cơ quan cấp phép. Bộ hồ sơ đó bao gồm đơn đề nghị cấp giấy phép xây dựng, giấy chứng nhận quyền sử dụng đất và bản vẽ thiết kế nhà trọ có xác nhận từ đơn vị thiết kế đủ điều kiện. Điều này giúp bạn hợp thức hóa quyền thi công và tránh rắc rối với cơ quan chức năng.
Cùng với những công ty như Công Ty Cổ Phần Thiết Kế Xây Dựng LACO, bạn sẽ nhận được sự hỗ trợ toàn diện từ giai đoạn xin phép đến thiết kế và xây dựng. Điều này không chỉ tiết kiệm thời gian mà còn đảm bảo rằng mọi thủ tục đều được thực hiện đúng quy định. Hãy để các chuyên gia giúp bạn thực hiện ước mơ xây dựng nhà trọ thật tiện nghi và hợp pháp!

Khi có ý định xây nhà trọ cho thuê, chủ đầu tư cần chú ý đến nhiều yếu tố quan trọng để tránh vi phạm pháp luật. Đầu tiên, việc chuẩn bị hồ sơ xin giấy phép xây dựng là điều không thể thiếu. Hồ sơ cần có đơn đề nghị cấp phép, bản sao giấy chứng minh quyền sử dụng đất và các giấy tờ liên quan khác. Cách nộp hồ sơ cũng rất quan trọng, bạn nên đến Phòng Quản lý Đô thị hoặc UBND cấp quận, huyện có đất.
Tiếp theo, cần lưu ý về các điều kiện liên quan đến đất đai, quy hoạch, và thiết kế xây dựng. Nhà trọ phải được thiết kế đảm bảo an toàn về kết cấu, hệ thống điện, nước và nhất là hệ thống phòng cháy chữa cháy. Bên cạnh đó, việc xin phép xây dựng phải tuân thủ quy định về chiều cao công trình, không được xây vượt quá bốn tầng nổi.
Cuối cùng, đừng quên đăng ký kinh doanh và các thủ tục liên quan khác. Việc này giúp bạn có một nền tảng vững chắc và hợp pháp để hoạt động kinh doanh nhà trọ hiệu quả.

Xin giấy phép xây dựng nhà trọ là một bước quan trọng đối với bất kỳ cá nhân hoặc tổ chức nào muốn đầu tư vào lĩnh vực bất động sản này. Được cấp bởi UBND cấp huyện hoặc Sở Xây dựng, giấy phép này không chỉ đảm bảo tính hợp pháp mà còn giúp bạn yên tâm hơn trong quá trình xây dựng. Đặc biệt, nếu bạn chọn dịch vụ xây dựng nhà trọn gói hoặc dịch vụ sửa chữa nhà trọn gói từ Việt Nhật Group, bạn sẽ được miễn phí xin giấy phép, một phần lợi ích không thể bỏ qua.
Để xin giấy phép xây dựng nhà trọ 2 tầng, chủ sở hữu đất cần có giấy chứng nhận quyền sử dụng hợp pháp. Điều này là rất cần thiết để đảm bảo rằng mọi thứ diễn ra theo đúng quy định của pháp luật. Tại Đà Nẵng, bạn có thể liên hệ trực tiếp với UBND cấp quận/huyện hoặc Sở Xây dựng để biết thêm thông tin chi tiết.
Chúng tôi, với nhiều năm kinh nghiệm trong lĩnh vực này, cam kết sẽ hoàn thiện hồ sơ xin phép từ A-Z, giúp bạn tiết kiệm thời gian và công sức. Một khi bạn đã có giấy phép, cần thực hiện thêm một số thủ tục như đăng ký kinh doanh, khai báo tạm trú cho người thuê, và thực hiện các quy định về phòng cháy chữa cháy. Hãy liên hệ với chúng tôi để được tư vấn tận tình và báo giá dịch vụ hợp lý.

Khi bạn có ý định xây dựng nhà trọ để cho thuê, việc nắm vững các tiêu chuẩn bản vẽ xin phép xây dựng là rất quan trọng. Theo các cập nhật mới nhất, hồ sơ bản vẽ cần tuân thủ nghiêm ngặt các tiêu chuẩn về kiến trúc, kết cấu, và các hệ thống như cấp thoát nước, điện, và phòng cháy chữa cháy. Đây là những yêu cầu cần thiết để đảm bảo an toàn cho công trình và người sử dụng.
Thời gian chuẩn bị hồ sơ xin giấy phép xây dựng thường mất khoảng từ 3 đến 5 ngày. Thiết kế căn nhà phải phù hợp với quy chuẩn kỹ thuật quốc gia hiện hành, đặc biệt chú ý đến các quy định mới có hiệu lực từ năm 2025. Việc thực hiện bản vẽ thiết kế sẽ cần có sự ký tên và đóng dấu của kiến trúc sư hoặc đơn vị có chứng chỉ hành nghề hợp pháp.
Đồng thời, bản vẽ cũng phải thể hiện rõ diện tích đất và quy mô xây dựng mà bạn định thực hiện. Từ việc chuẩn bị hồ sơ cho đến nộp tại cơ quan có thẩm quyền, bạn cần đảm bảo rằng mọi thứ đều đúng quy định. Chúc bạn thành công trong việc xây dựng nhà trọ của mình!

Tóm lại, việc lập bản vẽ xin phép xây dựng nhà trọ là một bước quan trọng trong quá trình đầu tư bất động sản. Bản vẽ không chỉ giúp chủ đầu tư nhận được sự chấp thuận từ các cơ quan chức năng mà còn đảm bảo rằng công trình được xây dựng đúng theo quy định, an toàn và hợp lý. Để có được một bản vẽ chất lượng, cần sự phối hợp chặt chẽ giữa kiến trúc sư, kỹ sư và chủ đầu tư. Hy vọng rằng những thông tin trên sẽ giúp bạn hiểu rõ hơn về quy trình này và thực hiện thành công dự án của mình.